Skip to content

ARDENNES - B.RA417

Rue des Ardennes 417, 5570 Beauraing Winenne
Ref.  5244237
Bedrijfsvastgoed
Bouwjaar 1965
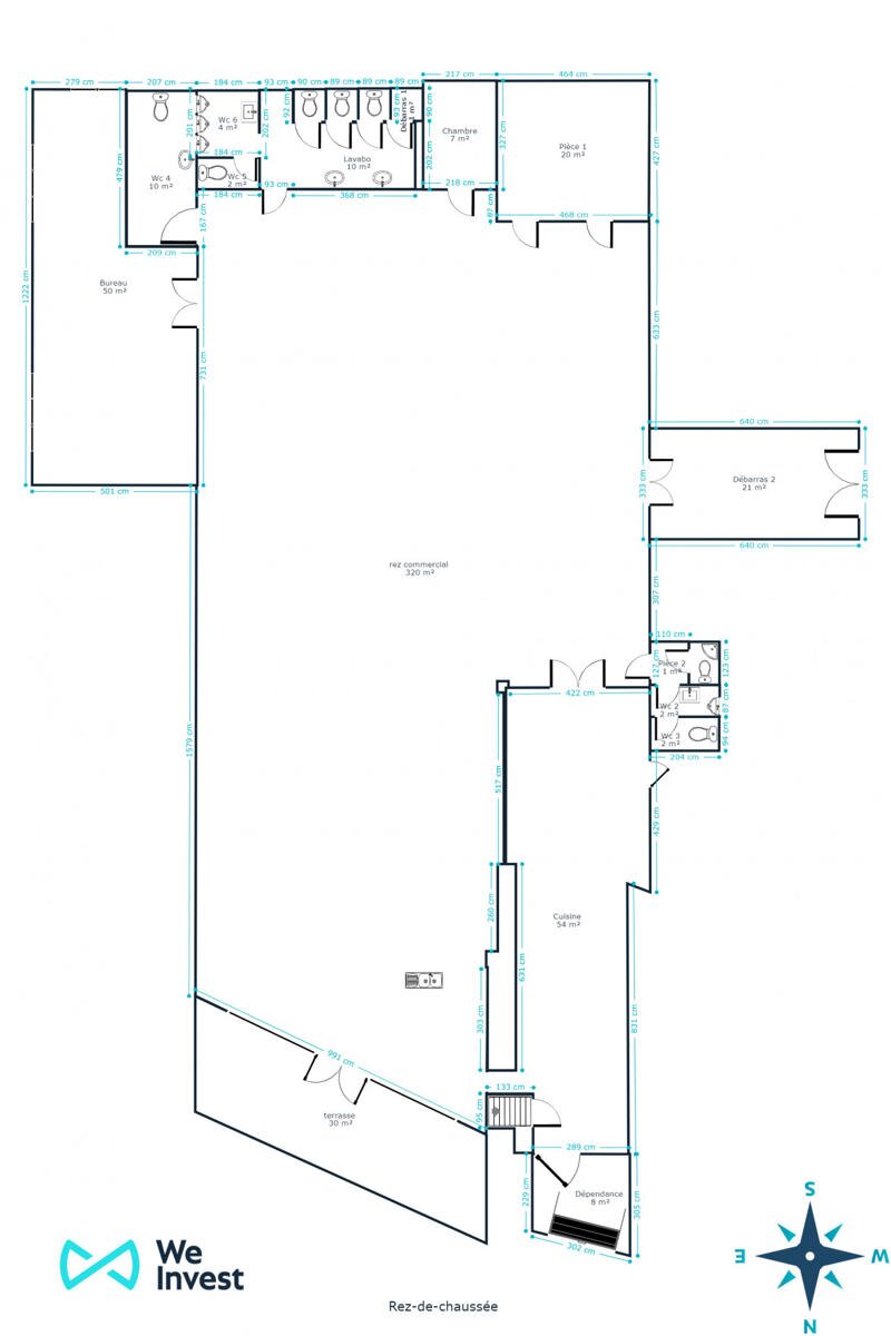
513m² woonopp.
1 garage

Financiele suggestie van onze professionals

Huurprijs per maand € 1500
Eigen inbreng (20% afgerond van het totaal) € 44.000

Locatie

Woningtype Bedrijfsvastgoed
Bouwjaar 1965
Woonopp. 513m²
Garages 1

Overstromingsgebied Niet medegedeeld
Stedenbouwkundige bestemming Woongebied
Stedenbouwkundige vergunning Ja
Verkavelingsvergunning Nee
Dagvaarding Nee
Rechterlijke beslissing Niet meegedeeld
Voorkooprecht Nee

Contacteer We Invest Ciney Haute-Meuse

Meer informatie?

Wenst u meer informatie? Aarzel dan niet langer en neem contact op met onze ervaren vastgoedprofessionals. Met hun uitgebreide kennis van de vastgoedmarkt zijn ze de ideale partner om u te begeleiden tijdens uw zoektocht.