Halfopen woning met tuin en garage in Vilvoorde
Albert I-laan 81, 1800 Vilvoorde
—
Ref. a0iTt000003CsuAIAS
Woning
4 slaapkamers
1 badkamer
Bouwjaar 1999
190m² woonopp.
297m² grondopp.
1 garage
[[ DIT PAND NEEMT DEEL AAN DE ERA OPEN HUIZEN DAG OP 6/12 VAN 11:00 TOT 12:00 ]]
Te koop: ruime halfopen woning in Vilvoorde, op de stadsrand en nabij alle faciliteiten en invalswegen.
Deze woning uit 1999 combineert comfort met energiezuinig wonen dankzij een EPC-label B en maar liefst 20 zonnepanelen. De ligging is ideaal: op korte afstand van openbaar vervoer, park, treinstation en ziekenhuis. Met een grote tuin van 212 m² en een praktische indeling is dit een perfecte gezinswoning.
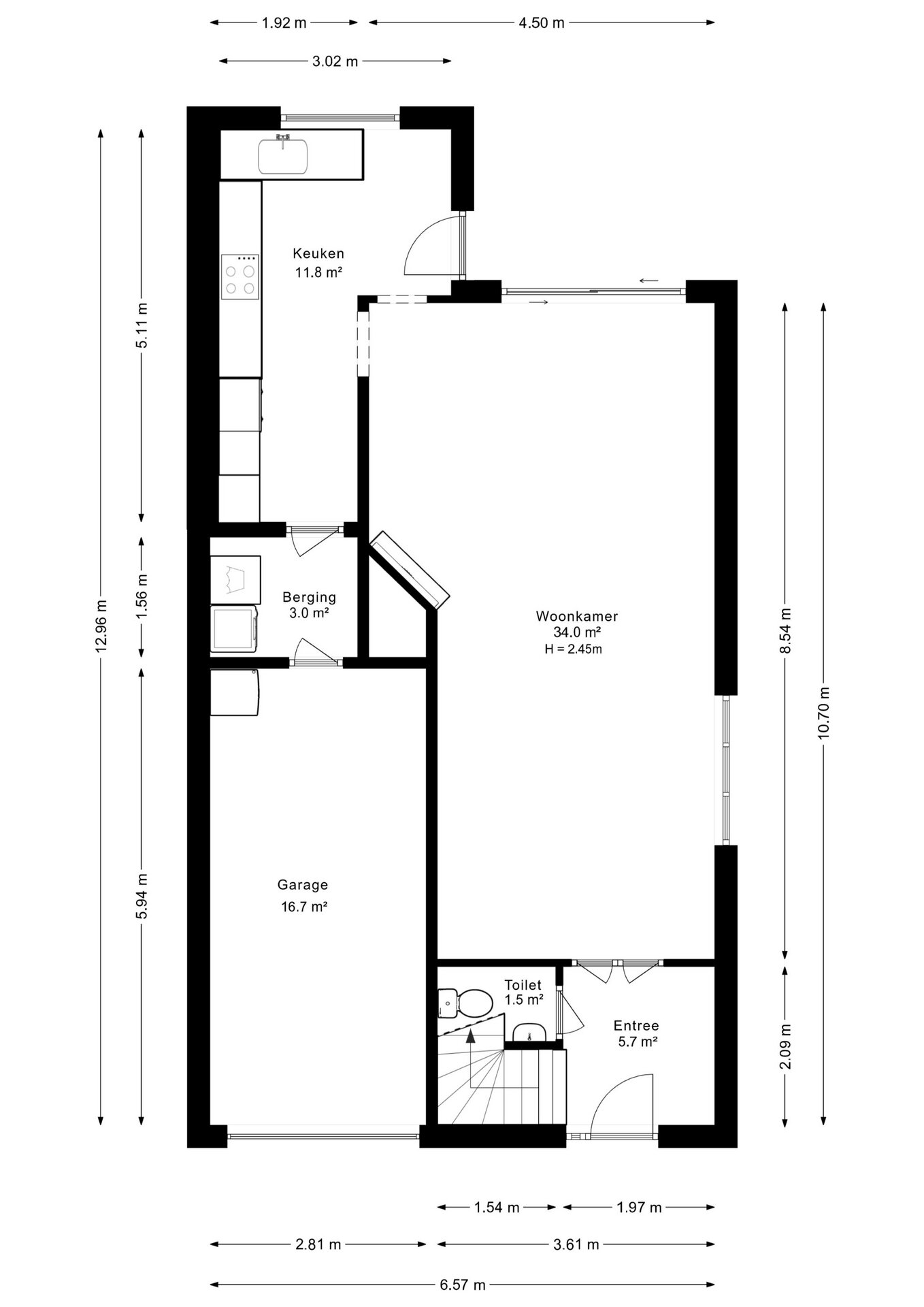
Belangrijkste ruimtes:
- Woonkamer (34 m²) met open haard en veel lichtinval.
- Keuken (11,8 m²) volledig uitgerust met inductiekookplaat, oven, vaatwasser en meer.
- 4 slaapkamers (8 m², 11,5 m², 12,7 m² en bureel van 5 m²).
- Badkamer (8,3 m²) met ligbad, dubbel wastafelmeubel en toilet.
- Garage (16,7 m²) met automatische poort.
- Bergingen met aansluitingen voor wasmachine en droogkast.
- Tuin (212 m²) met terras en tuinhuis.
Troeven:
- 20 zonnepanelen voor lage energiekosten.
- Energiezuinig EPC-label B.
- Centrale ligging nabij alle voorzieningen en invalswegen.
Neem vandaag nog contact op met Selena Perez y Latorre voor een bezoek via +32 2 335 11 13.
JOUW DROOMHUIS. ZO GEVONDEN!
Financiele suggestie van onze professionals
Belangrijke informatie omtrent dit pand.
Rendement binnenkort beschikbaar. Neem contact op met deze vastgoedprofessional voor meer info.
Locatie
| Woningtype | Woning |
| Slaapkamers | 4 |
| Badkamers | 1 |
| Bouwjaar | 1999 |
| Woonopp. | 190m² |
| Grondopp. | 297m² |
| Garages | 1 |
| Kadastraal Inkomen | € 1.316 |
| EPC | 175 |
| EPC referentie | 20251125-0003740473-RES-1 |
| Stedenbouwkundige bestemming | Woongebied |
| Stedenbouwkundige vergunning | Ja |
| Verkavelingsvergunning | Nee |
| Dagvaarding | Nee |
| Rechterlijke beslissing | Niet meegedeeld |
| Voorkooprecht | Nee |


