Hoekpand Dansaert – Unieke AAA-kans
Antoine Dansaertstraat 149-151, 1000 Brussel
—
Ref. D1050-25157
Bedrijfsvastgoed
1 slaapkamer
2 badkamers
Bouwjaar 1901
335m² woonopp.
228m² grondopp.
Ideaal gelegen in de prestigieuze Antoine Dansaertstraat, beschikt deze hoekwinkel met talrijke vitrines over een uitzonderlijke zichtbaarheid — een zeldzame kans voor uw toekomstige zaak.
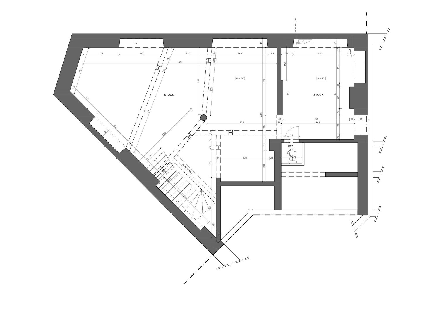
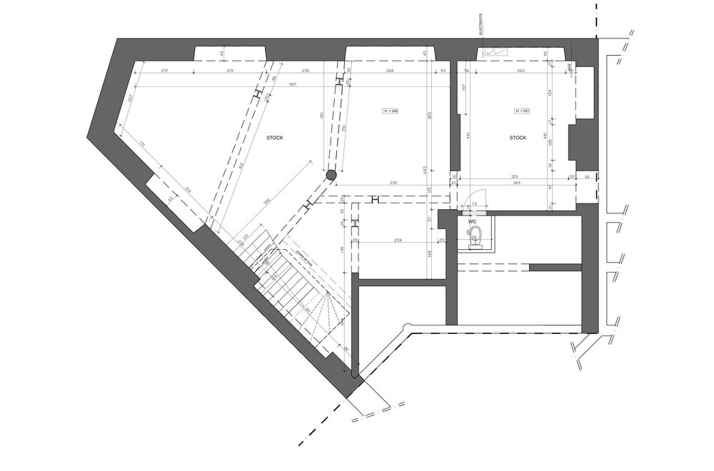
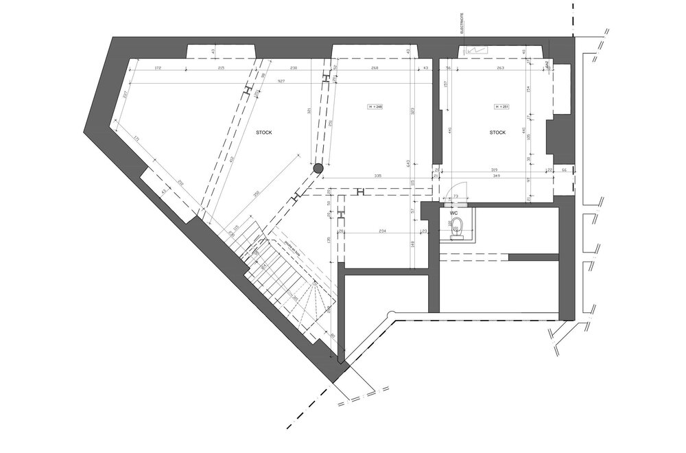
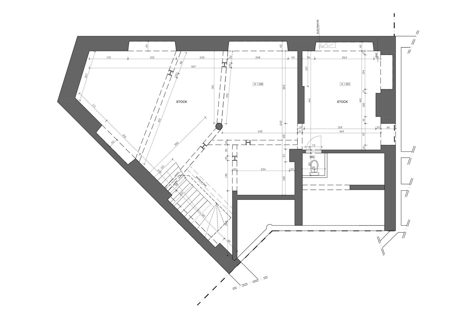
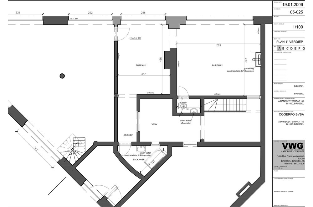
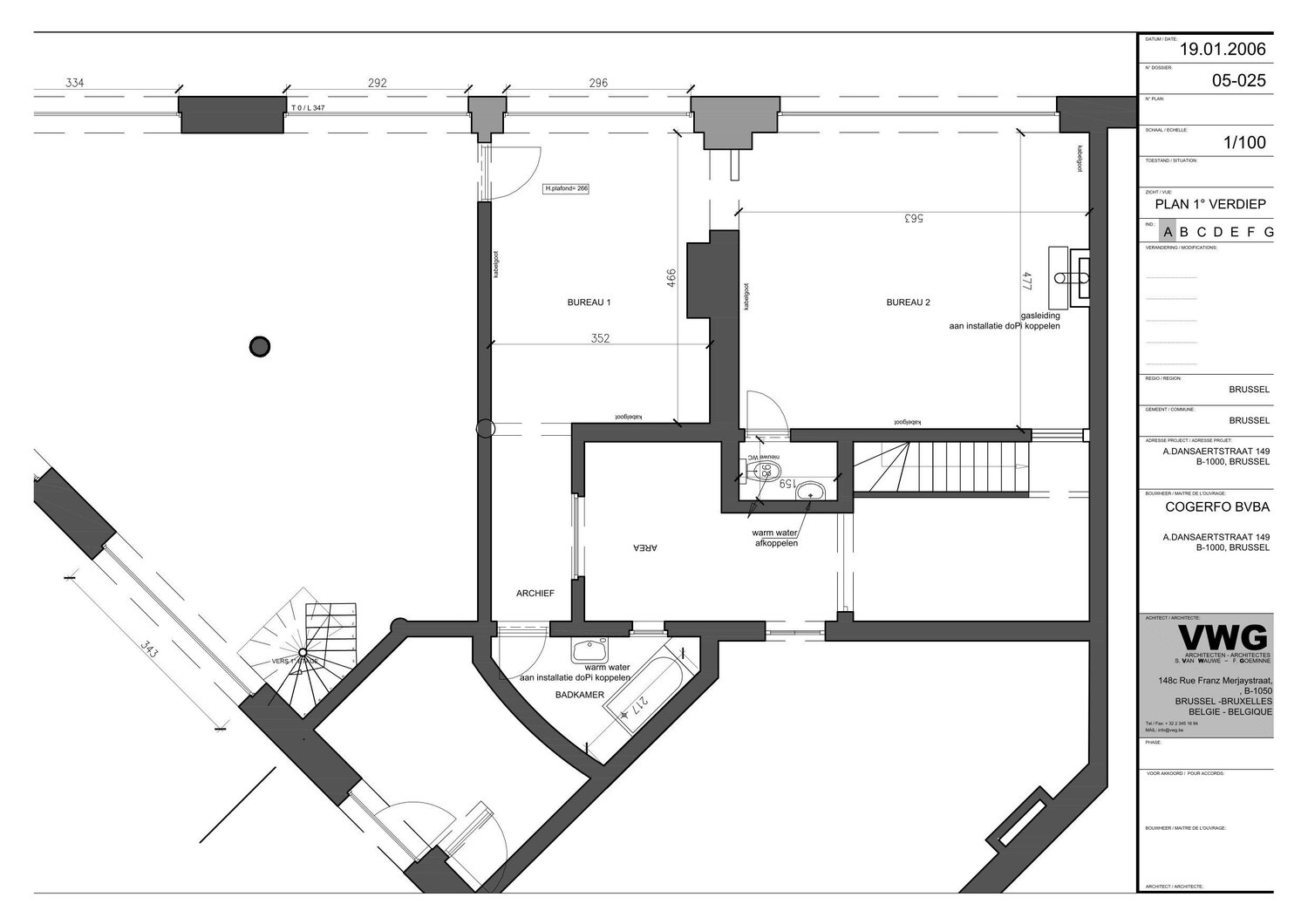
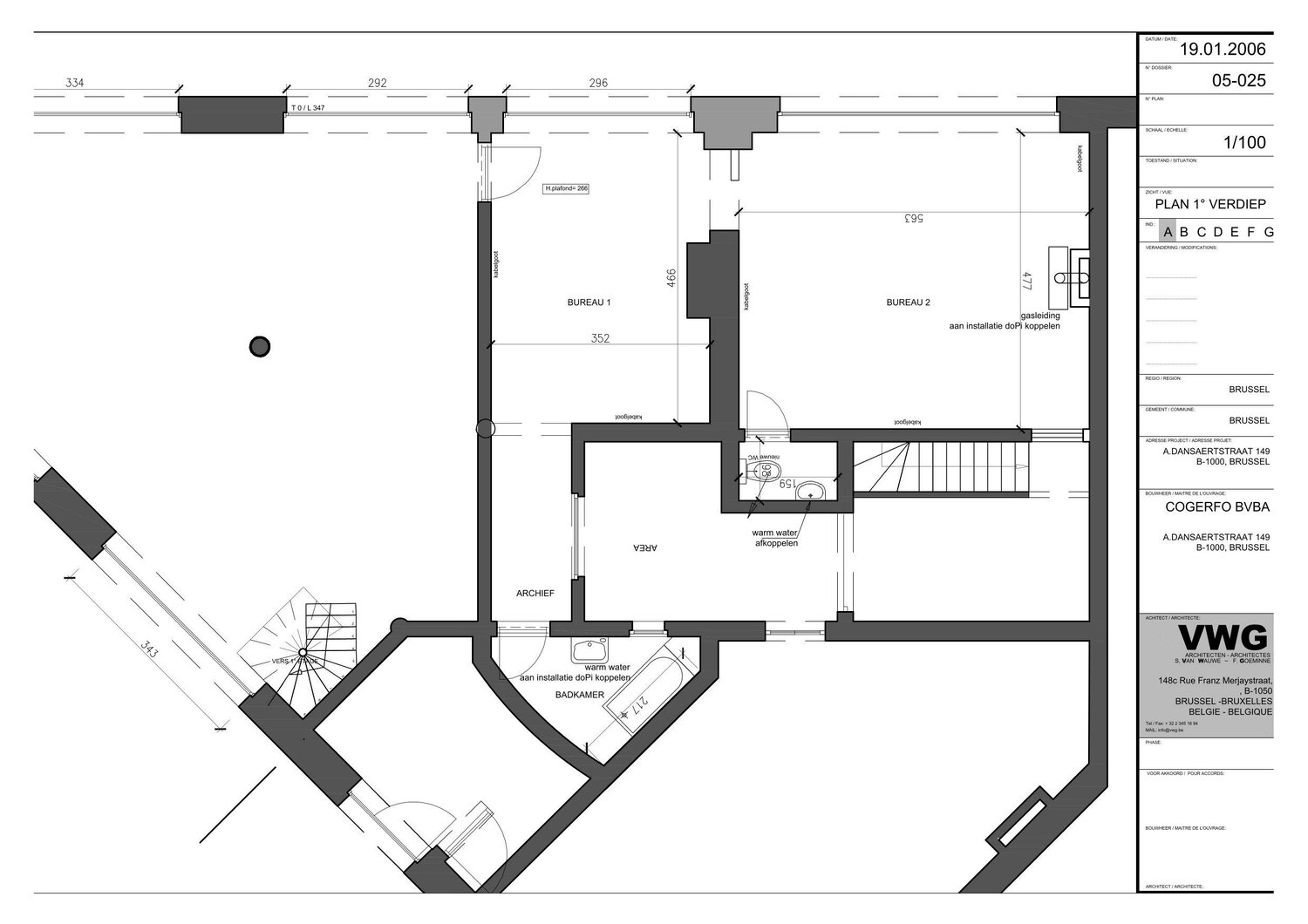
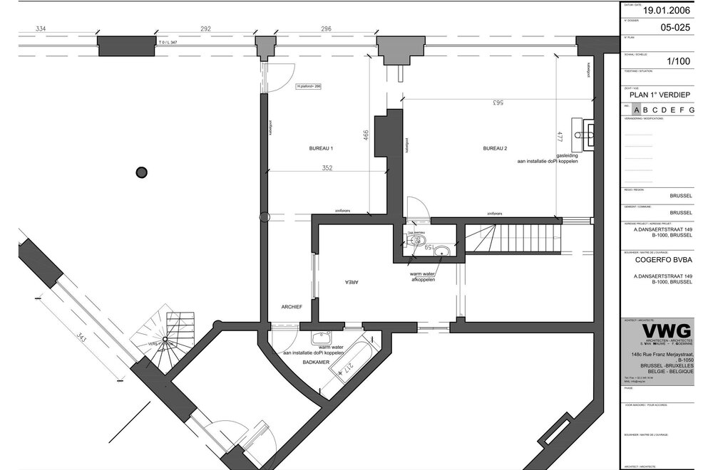
Het pand strekt zich uit over drie niveaus:
- een hoofdruimte op het gelijkvloers en een kelder,
- een tussenverdieping op de eerste verdieping die kan dienen als kantoor, woonruimte of uitbreiding van de commerciële oppervlakte.
Wacht niet te lang om een bezoek aan te vragen als u deze unieke kans op een AAA-locatie niet wilt missen.
Bestemming: Handelsruimte
Onroerend goed ingeschreven op de bewaarlijst / beschermd / procedure tot inschrijving of bescherming lopende: Opgenomen in de inventaris van het bouwkundig erfgoed
Verkavelingsvergunning: neen
Onroerend goed gelegen in een voorkooprechtperimeter: neen
Voorkeurrecht voor de huurder: neen
Financiele suggestie van onze professionals
| Huurprijs per maand | € 5000 |
| Eigen inbreng (20% afgerond van het totaal) | € 222.000 |
Locatie
| Woningtype | Bedrijfsvastgoed |
| Slaapkamers | 1 |
| Badkamers | 2 |
| Bouwjaar | 1901 |
| Woonopp. | 335m² |
| Grondopp. | 228m² |
| Overstromingsgebied | Niet medegedeeld |
| Stedenbouwkundige bestemming | Andere |
| Stedenbouwkundige vergunning | Ja |
| Verkavelingsvergunning | Nee |
| Dagvaarding | Niet meegedeeld |
| Rechterlijke beslissing | Niet meegedeeld |
| Voorkooprecht | Nee |


